FAQ
Why is a measured brickwork takeoff better than using a flat m² rate?
A measured takeoff breaks the work down by elevation, level and brick type, so you can apply realistic labour and material rates and prove your quantities if the client queries your price.
Do your brickwork takeoffs include labour pricing or just quantities?
By default we provide measured quantities only so you can plug in your own bricklaying rates. For contractors who want more support, we can add labour-only pricing or first-principles rate build-ups as a separate service, keeping quantities and pricing clearly separated in the schedule.
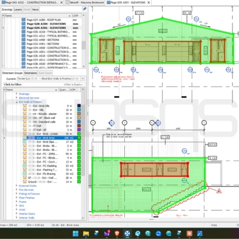
Can you complete a brickwork takeoff from PDF plans or do you need CAD files?
PDF plans are fine. We regularly complete brickwork take-offs from PDF drawings, including architectural elevations, sections and window/door schedules. If CAD/Revit files are available that’s a bonus, but not essential - we’ll still provide a clear schedule of quantities and marked-up drawings from standard PDF sets.
What’s the typical turnaround time and what format do I receive the brickwork takeoff in?
Most brickwork takeoffs are turned around in about 2–3 working days, depending on drawing complexity and workload. You’ll receive a trade-ready schedule (Excel/PDF) plus marked-up plans, so it’s easy to price, easy to review and simple to attach to your tender as backup.







